Перейти к содержимому
КВАДРАТ Архитектурное Бюро
ВСЕ ПРОЕКТЫ
ОБЩЕСТВЕННЫЕ
ГОСТИНИЦЫ
ЖИЛЫЕ
ИНТЕРЬЕРЫ
ГРАДОСТРОИТЕЛЬСТВО
▪▫ О БЮРО
▪▫ КОНТАКТЫ
Меню
ВСЕ ПРОЕКТЫ
ОБЩЕСТВЕННЫЕ
ГОСТИНИЦЫ
ЖИЛЫЕ
ИНТЕРЬЕРЫ
ГРАДОСТРОИТЕЛЬСТВО
▪▫ О БЮРО
▪▫ КОНТАКТЫ
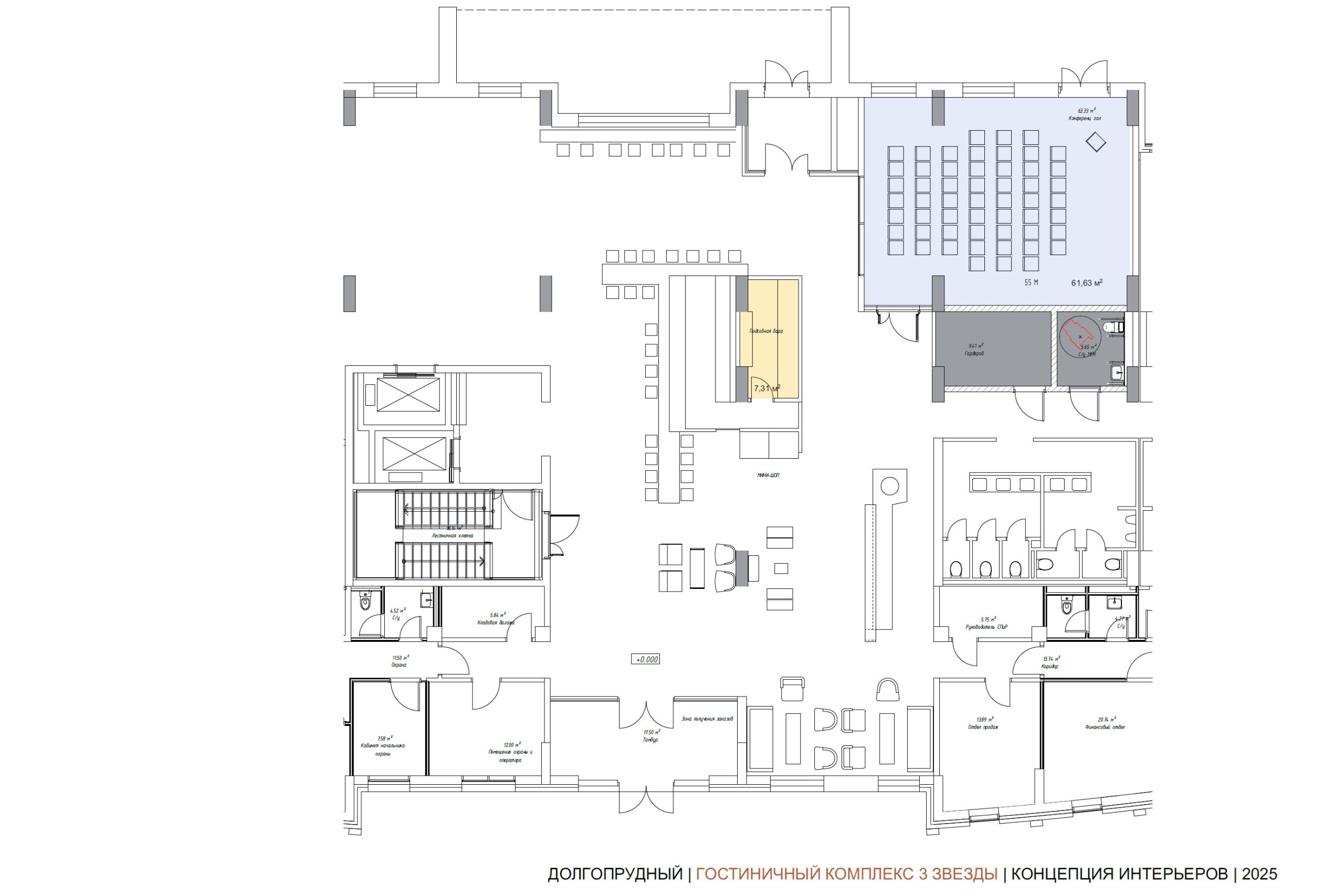
"ФИЗТЕХЛЭНД" ДОЛГОПРУДНЫЙ | КОНЦЕПЦИЯ 2025г.
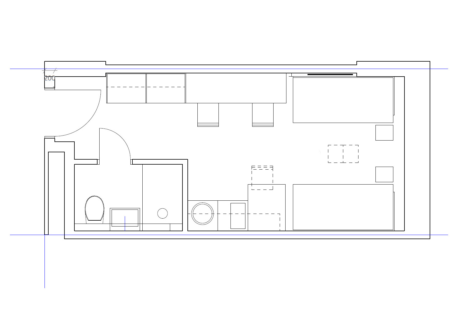
НОМЕРА "СТАНДАРТ" И "ДЖУНИОР"